Descrição: guindastes de lança montados em coluna Modelo SC com braço de perfil do sistema GIS KB.
Características:
- Perfil laminado a frio não dobrado sem soldas
- Freios acionados por molas de tampa, resistentes ao desgaste
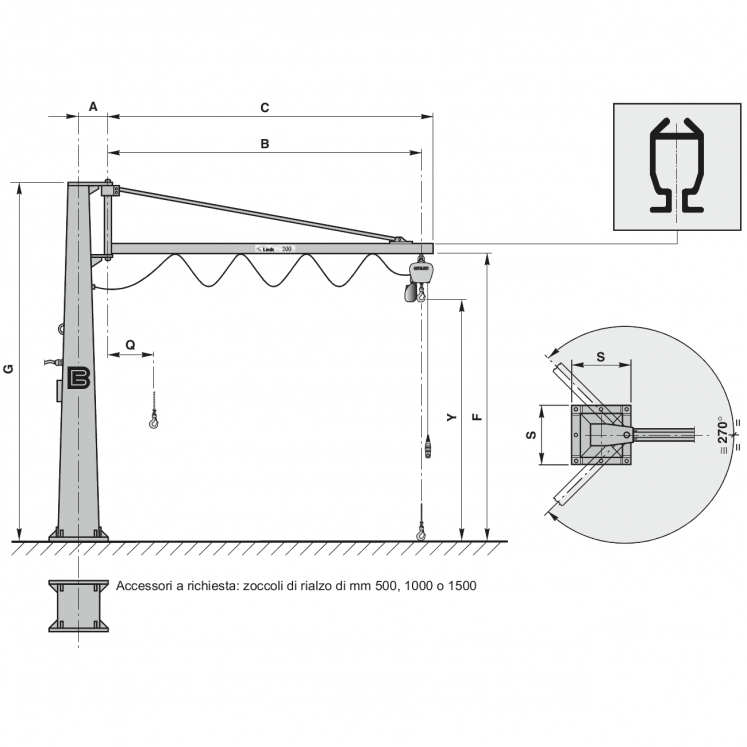
- Coluna Tronco-piramidal, nossa patente
- Acabamento com revestimento antiferrugem, duas demãos de tinta solúvel em água, não adequado para externo ou particular ambientes húmidos
Vantagens:
- Máxima suavidade garantida pela qualidade do perfil
- Máxima rigidez garantida pela geometria da coluna
- Rotação do braço até 270 °
Fornecida com:
- Trole de elevação
- Sistema de alimentação com cabos planos e carrinhos de cabos
- Três polos disjuntor
- Manual de instruções para montagem, uso e manutenção