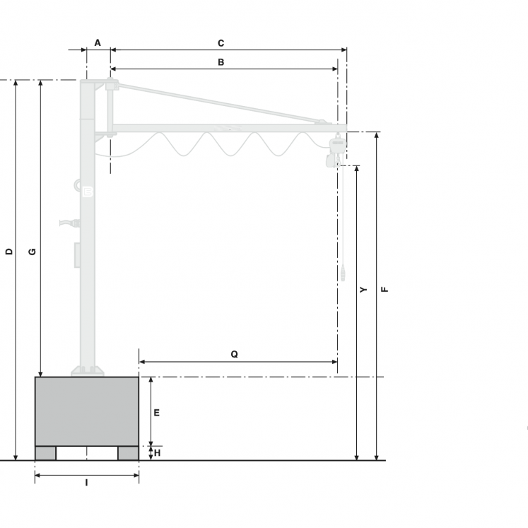
Descrição: guindastes móveis de lança com base paletizada, modelo SCP com braço de perfil Sistema GIS KB.
Características:
- Perfil laminado a frio não dobrado sem soldas
- Freios acionados por molas de tampa, resistentes ao desgaste
- Acabamento com acabamento antiferrugem, duas demãos de tinta solúvel em água, inadequadas para ambientes húmidos externos ou específicos
- A base paletizada é uma estrutura de ferro que deve ser preenchida com cimento pelo utilizador
Vantagens:
- Máxima suavidade garantida pela qualidade do perfil
- Máxima rigidez garantida pela geometria da coluna
- Graças à base paletizada a grua pode ser facilmente movida
- Rotação do braço até 270 °
Fornecido com:
- Carrinho de elevação
- Sistema de alimentação com cabo plano e carrinho de caixa de cabo
- Interruptor de disjuntores de três pólos
- Manual de instruções para montagem, uso e manutenção