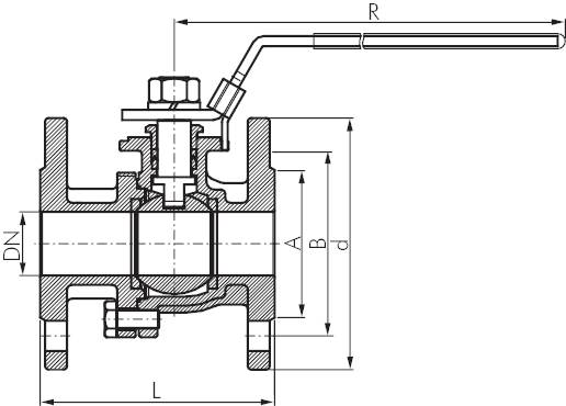
Materiais: Carcaça: 1 4408, esfera: 1 4408, vedação: PTFE (15% GF) - FKM, alça: 1 4301 Faixa de temperatura: -20ºC a +200ºC Faixa de operação: Água, vapor, óleo, ar comprimido, vácuo (máx. -0 9 bar), combustíveis, solventes, meios agressivos Opcional: atuador elétrico -EL, certificado 3 1 Vantagens: Comprimento de acordo com DIN 3202-F4 (DIN EN 558-1, linha 14) (de DN 150 de acordo com DIN 3202-F5, DIN EN 558-1, linha 15), flange de montagem em conformidade com ISO 5211 permite a montagem de uma unidade, alavanca manual bloqueável, por favor, encomende cadeados separadamente